Retour à ma recherche

Bâtiment de 3000 m² à vendre à St Vincent de Tyrosse (40)

Télécharger l'annonce
Achat
A Saint Vincent De Tyrosse (40)
Batiment
3000m²
Référence du bien : 1404

Le plus du bien

- Bayonne à 33 mn par l'A63
- Dax à 27 mn par la D824

Présentation du bien

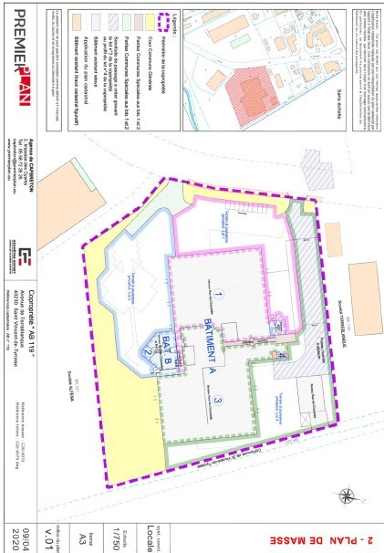
Beau bâtiment de 3000 m² à vendre dans une zone industrielle de St Vincent de Tyrosse au sud des Landes, sur un foncier de 18 000m² mis en copropriété (3 lots)
Le bâtiment est constitué de :
- Au RDC : Un local d'activité/entrepôt d'environ 2420 m² (m de HSP / espace bureaux/magasin de 100m²/chauffage par aérothermes, bloc sanitaires)
- Au RDC/R+1 : Bureaux d'environ 580 m² , aménagés et cloisonnés, câblés et climatisés, bloc sanitaires
- Extérieur : parking privatif et stockage possible
- Accessibilité : gros porteur et porte livraison

- Bayonne à 33 mn par l'A63 - Dax à 27 mn par la D824 - Espagne à 1 h 10 - Aéroport de Biarritz à 38 mn

- Commerces et services administratif à St Vincent de Tyrosse

Les caractéristiques du bâtiment

Le bâtiment est constitué de :
- Au RDC : Un local d'activité/entrepôt d'environ 2420 m² (m de HSP / espace bureaux/magasin de 100m²/chauffage par aérothermes, bloc sanitaires)
- Au RDC/R+1 : Bureaux d'environ 580 m² , aménagés et cloisonnés, câblés et climatisés, bloc sanitaires
- Extérieur : parking privatif et stockage possible
- Accessibilité : gros porteur et porte livraison

Bon état

oui

collectif au gaz - réversible

oui

oui

oui

RJ 45

oui

oui

Contactez-nous

ON VOUS RAPPELLE !

Laissez-nous votre numéro.
Un conseiller vous recontacte.

POUR NOUS JOINDRE...

N’hésitez pas à nous contacter par téléphone au 05 57 57 84 84 du lundi au vendredi.

Swann
Conseiller implantation à votre écoute
guillemet_ouverture

Parlons de votre projet